Beschreibung
Die Barkentine Loth Loriën verfügt über stattliche 48 Metern Länge. Die Segel im Wind, das Sonnendeck – das sind beste Aussichten auf einen amüsanten und erholsamen Segeltörn.
Die Loth Loriën blickt auf eine bewegte Geschichte zurück. 1907 im norwegischen Bergen gebaut, fuhr sie ursprünglich als Herings-Logger. 1989 erwarb Jaap van der Rest die zuverlässige Arbeiterin aus dem rauhen Norden Europas. Er baute sie Dreimast-Logger mit moderner Takelage um und stattete sie mit einem komfortablen Salon und funktionellen Gästekabinen aus. 2009 erfolgte dann ein weiterer Umbau und seither segelt sie mit Rahsegeln am Großmast als Barkentine über die Meere.
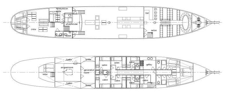
Bis 90 Passagiere können an Bord der Loth Loriën einem unvergesslichen Tag entgegen segeln. Für Wochenenden und längere Segeltörns bietet das Schiff 36 Passagieren Platz. In der voll ausgerüsteten Kombüse lassen sich tolle Menus zaubern, während Sie an der Bar bei einem Aperitif plaudern. Im Salon finden 50 Gäste ihren Platz.
Details
- Segelreviere Ostsee & Nordsee
- Charter-Reviere Ostsee
- Anzeigen Kategorien Ostsee & Nordsee
- Schiffstyp 3-Mast Barkentine
- Abfahrtshäfen Hamburg, Kiel
- Kabinenzahl 9
- Gäste Tagesfahrten 90
- Gäste Übernachtung 36
- Verpflegung Catering vom Schiff
Technische Daten
Technik
- Motor: Doosan V158, 480Ps
Zahlen
- Länge: 48 m
- Breite: 7 m
- Tiefgang: 2,80 m
- Höhe: 30 m
- Segelfläche: 654 m²

Bewertung abgeben